Гвоздезабивной пистолет (нейлер) пневматический отделочный BOSTITCH BTFP12233
- Тип крепежа: гвозди реечные типа 18_ga, угол наклона 0 градусов
- Длина гвоздей: 15...55 (мм)
- Сечение гвоздей: прямоугольное 1,25 x 1,00 (мм); площадь поперечного сечения S=1,25 (мм2)
- Шляпка гвоздя: прямоугольная
- Максимальная емкость магазина: 100 гвоздей
- Регулировка глубины забивания гвоздей: есть
- Блокировка от холостого выстрела (когда закончатся гвозди): нет; есть индикатор, который информирует об окончании запаса гвоздей в магазине
- Режим забивания гвоздей первый: контактный (нажать курок и при каждом ударе ствола по прибиваемому материалу будет забиваться гвоздь)
- Режим забивания гвоздей второй: последовательный - секвентальный (прижать ствол к прибиваемому материалу, после нажатия на курок гвоздь будет забит)
- Смена режимов забивания гвоздей: переключателем
- Крюк для подвеса на пояс / доску: есть пластиковый; на ширину доски до 22 (мм)
- Масса нейлера с фитингом без гвоздей: 1,54 (кг)
- Рабочее давление: 70...120 (psi) = 4,8...8,3 (атм)
- Расход воздуха: 0,55 (литра/выстрел) при 5,6 (атм)
- Смазка: нейлер безмасляного типа, что предотвращает появление масляных пятен на рабочей поверхности (но зимой при отрицательных температурах рекомендуется использовать зимнюю смазку для предотвращения замерзания конденсата)
Что в комплекте:
- гвоздезабивной пистолет (нейлер) BOSTITCH BTFP12233
- фитинг
- инструкция на английском языке
- кейс
Родина бренда - США.
Страна производства, сборка - Тайвань.
Произведено под требования и стандарты рынка - США.
*Примечание:
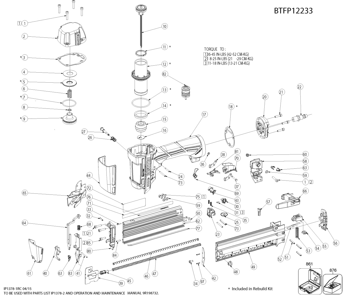
Взрыв схемы (чертежи) нейлера BOSTITCH BTFP12233:
Примеры подходящих гвоздей:
https://www.for-est.ru/catalog/krepezh/shtift/4286/
Методика подбора компрессора:
Для рассчета производительности компрессора необходимо знать расход воздуха нейлером - гвоздезабивателем на 1 выстрел, необходимое давление при выстреле и скорость забивания гвоздей в минуту. По данным из технических характеристик нейлера - гвоздезабивателя BOSTITCH BTFP12233 расход воздуха равен 0,55 литр на 1 выстрел при давлении 5,6 атм. Предположим, что нужно забивать гвозди со скоростью 100 шт в минуту. Вывод: необходим компрессор с производительностью: 0,55 x 100 = 55 литров в минуту при давлении 5,6 атм или более производительный. Если работать медленнее в 2 раза и забивать только 50 шт гвоздей в минуту, то будет необходим компрессор с производительностью: 0,55 x 50 = 27,5 литров в минуту при давлении 5,6 атм или более производительный. Кроме того, при выборе компрессора нужно брать во внимание и максимальное давление, которое может потребоваться нейлеру - гвоздезабивателю для забивания гвоздей в твердую древесину. Объем ресивера компрессора имеет вторичное значение и влияет лишь на величину запаса воздуха между подкачками.
Гвоздезабивной пистолет (нейлер) пневматический отделочный BOSTITCH BTFP12233 [18_ga]
| Цена | Гарантия от 52tool.ru | Техподдержка от 52tool.ru |
|
|---|---|---|---|
| 1 месяц | 1 сутки | ||
| 20 850 руб. | ✔ | ✔ | |
| 19 808 руб. | ✔ | ✔ | |
| 18 850 руб. | — | — | — |
- Доступность: В наличии
**Для ЮР. ЛИЦ цена + 10% (без НДС)
Опции:
-
20 850 руб.
Рекомендуемые товары
Очки защитные Dewalt DPG55-9D Indoor/Outdoor
1 400 руб.
| Цена | Гарантия от 52tool.ru | Техподдержка от 52tool.ru |
|
|---|---|---|---|
| 1 месяц | 1 сутки | ||
| 1 400 руб. | ✔ | ✔ | |
| 1 400 руб. | ✔ | ✔ | |
**Для ЮР. ЛИЦ цена + 10% (без НДС)
Есть в наличии
Нет в наличии; указана последняя цена; актуальную цену уточняйте! (Под заказ: 1...2мес)
Набор фитингов Legacy Manufacturing ColorConnex Industrial [3шт]
1 950 руб.
| Цена | Гарантия от 52tool.ru | Техподдержка от 52tool.ru |
|
|---|---|---|---|
| 1 месяц | 1 сутки | ||
| 1 950 руб. | ✔ | ✔ | |
| 1 950 руб. | ✔ | ✔ | |
**Для ЮР. ЛИЦ цена + 10% (без НДС)
Есть в наличии
Ожидается привоз (через 0,5...2мес)
Шланг для пневмоиструмента Metabo HPT 19412QPM [15м]
6 450 руб.
| Цена | Гарантия от 52tool.ru | Техподдержка от 52tool.ru |
|
|---|---|---|---|
| 1 месяц | 1 сутки | ||
| 6 450 руб. | ✔ | ✔ | |
| 6 450 руб. | ✔ | ✔ | |
**Для ЮР. ЛИЦ цена + 10% (без НДС)
Есть в наличии
Нет в наличии; указана последняя цена; актуальную цену уточняйте! (Под заказ: 1...2мес)
Шланг для пневмоиструмента Metabo HPT 115749M [15м] с фитингами и аксеcсуарами
8 400 руб.
| Цена | Гарантия от 52tool.ru | Техподдержка от 52tool.ru |
|
|---|---|---|---|
| 1 месяц | 1 сутки | ||
| 8 400 руб. | ✔ | ✔ | |
| 8 400 руб. | ✔ | ✔ | |
**Для ЮР. ЛИЦ цена + 10% (без НДС)
Есть в наличии
Ожидается привоз (через 0,5...2мес)
Компрессор аккумуляторный ("тушка") DeWalt DCC2520
| Цена | Гарантия от 52tool.ru | Техподдержка от 52tool.ru |
|
|---|---|---|---|
| 1 месяц | 1 сутки | ||
| 63 150 руб. | ✔ | ✔ | |
| 59 993 руб. | ✔ | ✔ | |
**Для ЮР. ЛИЦ цена + 10% (без НДС)
Есть в наличии
Нет в наличии; указана последняя цена; актуальную цену уточняйте! (Под заказ: 1...2мес)
Metabo HPT wh18dex
| Цена | Гарантия от 52tool.ru | Техподдержка от 52tool.ru |
|
|---|---|---|---|
| 1 месяц | 1 сутки | ||
| 21 850 руб. | ✔ | ✔ | |
| 20 758 руб. | ✔ | ✔ | |
| 19 750 руб. | — | — | — |
**Для ЮР. ЛИЦ цена + 10% (без НДС)
Есть в наличии
Ожидается привоз (через 0,5...2мес)
Набор фитингов Milton S-303MKIT [3шт]
1 300 руб.
| Цена | Гарантия от 52tool.ru | Техподдержка от 52tool.ru |
|
|---|---|---|---|
| 1 месяц | 1 сутки | ||
| 1 300 руб. | ✔ | ✔ | |
| 1 300 руб. | ✔ | ✔ | |
**Для ЮР. ЛИЦ цена + 10% (без НДС)
Есть в наличии
Ожидается привоз (через 0,5...2мес)
![Гвоздезабивной пистолет (нейлер) пневматический отделочный BOSTITCH BTFP12233 [18_ga] Гвоздезабивной пистолет (нейлер) пневматический отделочный BOSTITCH BTFP12233 [18_ga]](https://52tool.ru/image/cache/catalog/01-2023fotoweb/bostitch/btfp12233-18ga/bostitch-btfp12233-000-228x228.jpg)
![Гвоздезабивной пистолет (нейлер) пневматический отделочный BOSTITCH BTFP12233 [18_ga] Гвоздезабивной пистолет (нейлер) пневматический отделочный BOSTITCH BTFP12233 [18_ga]](https://52tool.ru/image/cache/catalog/01-2023fotoweb/bostitch/btfp12233-18ga/bostitch-btfp12233-001-74x74.jpg)
![Гвоздезабивной пистолет (нейлер) пневматический отделочный BOSTITCH BTFP12233 [18_ga] Гвоздезабивной пистолет (нейлер) пневматический отделочный BOSTITCH BTFP12233 [18_ga]](https://52tool.ru/image/cache/catalog/01-2023fotoweb/bostitch/btfp12233-18ga/bostitch-btfp12233-002-74x74.jpg)
![Гвоздезабивной пистолет (нейлер) пневматический отделочный BOSTITCH BTFP12233 [18_ga] Гвоздезабивной пистолет (нейлер) пневматический отделочный BOSTITCH BTFP12233 [18_ga]](https://52tool.ru/image/cache/catalog/01-2023fotoweb/bostitch/btfp12233-18ga/bostitch-btfp12233-003-74x74.jpg)
![Гвоздезабивной пистолет (нейлер) пневматический отделочный BOSTITCH BTFP12233 [18_ga] Гвоздезабивной пистолет (нейлер) пневматический отделочный BOSTITCH BTFP12233 [18_ga]](https://52tool.ru/image/cache/catalog/01-2023fotoweb/bostitch/btfp12233-18ga/bostitch-btfp12233-004-74x74.jpg)
![Гвоздезабивной пистолет (нейлер) пневматический отделочный BOSTITCH BTFP12233 [18_ga] Гвоздезабивной пистолет (нейлер) пневматический отделочный BOSTITCH BTFP12233 [18_ga]](https://52tool.ru/image/cache/catalog/01-2023fotoweb/bostitch/btfp12233-18ga/bostitch-btfp12233-005-74x74.jpg)
![Гвоздезабивной пистолет (нейлер) пневматический отделочный BOSTITCH BTFP12233 [18_ga] Гвоздезабивной пистолет (нейлер) пневматический отделочный BOSTITCH BTFP12233 [18_ga]](https://52tool.ru/image/cache/catalog/01-2023fotoweb/bostitch/btfp12233-18ga/bostitch-btfp12233-006-74x74.jpg)
![Гвоздезабивной пистолет (нейлер) пневматический отделочный BOSTITCH BTFP12233 [18_ga] Гвоздезабивной пистолет (нейлер) пневматический отделочный BOSTITCH BTFP12233 [18_ga]](https://52tool.ru/image/cache/catalog/01-2023fotoweb/bostitch/btfp12233-18ga/bostitch-btfp12233-007-74x74.jpg)
![Гвоздезабивной пистолет (нейлер) пневматический отделочный BOSTITCH BTFP12233 [18_ga] Гвоздезабивной пистолет (нейлер) пневматический отделочный BOSTITCH BTFP12233 [18_ga]](https://52tool.ru/image/cache/catalog/01-2023fotoweb/bostitch/btfp12233-18ga/bostitch-btfp12233-013-74x74.jpg)
![Гвоздезабивной пистолет (нейлер) пневматический отделочный BOSTITCH BTFP12233 [18_ga] Гвоздезабивной пистолет (нейлер) пневматический отделочный BOSTITCH BTFP12233 [18_ga]](https://52tool.ru/image/cache/catalog/01-2023fotoweb/bostitch/btfp12233-18ga/bostitch-btfp12233-014-74x74.jpg)
![Гвоздезабивной пистолет (нейлер) пневматический отделочный BOSTITCH BTFP12233 [18_ga] Гвоздезабивной пистолет (нейлер) пневматический отделочный BOSTITCH BTFP12233 [18_ga]](https://52tool.ru/image/cache/catalog/01-2023fotoweb/bostitch/btfp12233-18ga/bostitch-btfp12233-009-74x74.jpg)
![Гвоздезабивной пистолет (нейлер) пневматический отделочный BOSTITCH BTFP12233 [18_ga] Гвоздезабивной пистолет (нейлер) пневматический отделочный BOSTITCH BTFP12233 [18_ga]](https://52tool.ru/image/cache/catalog/01-2023fotoweb/bostitch/btfp12233-18ga/bostitch-btfp12233-010-74x74.jpg)
![Гвоздезабивной пистолет (нейлер) пневматический отделочный BOSTITCH BTFP12233 [18_ga] Гвоздезабивной пистолет (нейлер) пневматический отделочный BOSTITCH BTFP12233 [18_ga]](https://52tool.ru/image/cache/catalog/01-2023fotoweb/bostitch/btfp12233-18ga/bostitch-btfp12233-011-74x74.jpg)
![Гвоздезабивной пистолет (нейлер) пневматический отделочный BOSTITCH BTFP12233 [18_ga] Гвоздезабивной пистолет (нейлер) пневматический отделочный BOSTITCH BTFP12233 [18_ga]](https://52tool.ru/image/cache/catalog/01-2023fotoweb/bostitch/btfp12233-18ga/bostitch-btfp12233-012-74x74.jpg)
![Гвоздезабивной пистолет (нейлер) пневматический отделочный BOSTITCH BTFP12233 [18_ga] Гвоздезабивной пистолет (нейлер) пневматический отделочный BOSTITCH BTFP12233 [18_ga]](https://52tool.ru/image/cache/catalog/01-2023fotoweb/bostitch/btfp12233-18ga/bostitch-btfp12233-020-74x74.jpg)
![Гвоздезабивной пистолет (нейлер) пневматический отделочный BOSTITCH BTFP12233 [18_ga] Гвоздезабивной пистолет (нейлер) пневматический отделочный BOSTITCH BTFP12233 [18_ga]](https://52tool.ru/image/cache/catalog/01-2023fotoweb/bostitch/btfp12233-18ga/bostitch-btfp12233-021-74x74.jpg)
![Гвоздезабивной пистолет (нейлер) пневматический отделочный BOSTITCH BTFP12233 [18_ga] Гвоздезабивной пистолет (нейлер) пневматический отделочный BOSTITCH BTFP12233 [18_ga]](https://52tool.ru/image/cache/catalog/01-2023fotoweb/bostitch/btfp12233-18ga/bostitch-btfp12233-099-74x74.jpg)
![Гвоздезабивной пистолет (нейлер) пневматический отделочный BOSTITCH BTFP12233 [18_ga] Гвоздезабивной пистолет (нейлер) пневматический отделочный BOSTITCH BTFP12233 [18_ga]](https://52tool.ru/image/cache/catalog/01-2023fotoweb/service-74x74.jpg)

![Набор фитингов Legacy Manufacturing ColorConnex Industrial [3шт] Набор фитингов Legacy Manufacturing ColorConnex Industrial [3шт]](https://52tool.ru/image/cache/catalog/01-foto-web/gvozdezabivateli/shlangi/cca73452d-0-200x200.jpg)
![Шланг для пневмоиструмента Metabo HPT 19412QPM [15м] Шланг для пневмоиструмента Metabo HPT 19412QPM [15м]](https://52tool.ru/image/cache/catalog/01-2023fotoweb/metabo_hpt/air_tool/air_hose/metabo-hpt-19412qpm-001-200x200.jpg)
![Шланг для пневмоиструмента Metabo HPT 115749M [15м] с фитингами и аксеcсуарами Шланг для пневмоиструмента Metabo HPT 115749M [15м] с фитингами и аксеcсуарами](https://52tool.ru/image/cache/catalog/01-2023fotoweb/metabo_hpt/air_tool/air_hose/metabo-hpt-115749m-01-200x200.jpg)


![Набор фитингов Milton S-303MKIT [3шт] Набор фитингов Milton S-303MKIT [3шт]](https://52tool.ru/image/cache/catalog/01-2023fotoweb/shlangi/fittings/milton-s-303mkit-000-200x200.jpg)